Notice: Array to string conversion in /home/nftbtoew/public_html/index/libraries/joomla/registry/registry.php on line 342

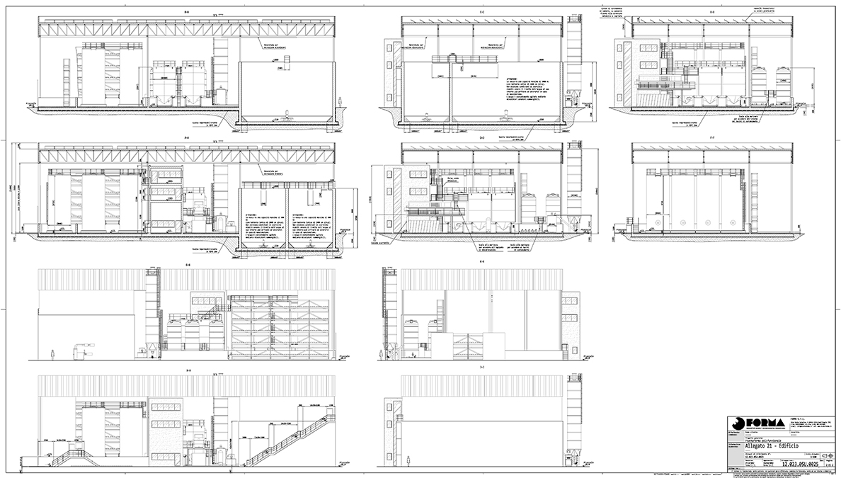
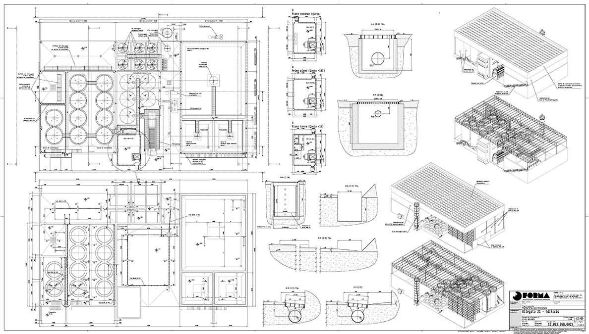
Piattaforme polifunzionali di trattamento rifiuti

Le piattaforme polifunzionali di trattamento rifiuti sono essenzialmente costituiti da: baie attrezzate di scarico rifiuti liquidi da autocisterne, baie attrezzate di scarico rifiuti oleosi,  serbatoi di stoccaggio per i rifiuti liquidi pericolosi e non (compreso i rifiuti infiammabili), reattori di disemulsionamento oli (per il recupero degli oli e per la separazione delle acque da trattare), reattori di trattamento chimico-fisico in continuo, e discontinuo o batch, impianti per il trattamento di tipo biologico, serbatoi/reattori di stoccaggio e condizionamento fanghi, impianti di disidratazione fanghi, evaporazione rifiuti liquidi, sezione di stoccaggio preparazione e dosaggio automatico dei reagenti chimici e sezione di aspirazione aeriformi, completa di trattamento emissioni.

Questi impianti sono utilizzati per trattare i rifiuti liquidi attraverso processi chimico-fisico e biologico per abbattere i carichi inquinanti residui e per ottenere acque in uscita conformi alle vigenti normative per lo scarico  in fognatura o in acque superficiali.

La depurazione chimico-fisica è adatta alla maggior parte delle acque reflue industriali, e consiste nel miscelare il liquame con additivi chimici in grado di agglomerare le sostanze contaminanti  in fiocchi e nell’ effettuare, successivamente, la separazione solido-liquido delle acque trattate. Questo trattamento può essere efficacemente utilizzato per trattare rifiuti contenenti metalli pesanti e per rimuovere sostanze organiche dai reflui: in particolare, miscelandoli con opportuni reagenti chimici, in combinazione con catalizzatori, è possibile ossidare chimicamente i contaminati organici.

A valle del sistema di depurazione chimico-fisico, è solitamente installato un impianto di trattamento biologico a fanghi attivi cui è associato un trattamento terziario di finissaggio, per affinare le acque in uscita, rendendone i parametri conformi per lo scarico.

A seconda delle specifiche esigenze del cliente, le piattaforme polifunzionali  possono comprendere anche  uno o più tipologie di impianti per il trattamento dei rifiuti solidi e  fangosi come  gli impianti di stabilizzazione/solidificazione e soil-washing.

Il trattamento di “stabilizzazione/solidificazione” è utilizzato per trattare i rifiuti pericolosi e non, nelle diverse forme (liquidi, fanghi, melme, solidi, ecc.), singolarmente o in miscela tra loro con lo scopo di modificare le sostanze contenute nel rifiuto. Nel  soil-washing il terreno contaminato subisce un processo di lavaggio, una selezione granulometrica dei materiali lavati e in ultimo un trattamento chimico-fisico della parte acquosa/fangosa con recupero delle acque di lavaggio. Il processo, infatti, consente di separare le frazioni con granulometria maggiore (tipo sabbia e ghiaia), da limo ed argilla concentrando i contaminanti proprio in questa frazione. Le particelle di maggiori dimensioni, dopo il lavaggio, possono essere riutilizzate e riportate nel sito di provenienza. La parte rimanente di particelle con piccole dimensioni è quella contenente un'alta concentrazione di contaminanti. Tali rifiuti, di dimensioni e peso ridotto, possono essere inviati al riutilizzo in fornace e/o cementerie oppure avviati allo smaltimento definitivo.

back to top

Login or Register

Facebook user?

You can use your Facebook account to sign into our site.

fb iconLog in with Facebook

LOG IN